131 м2

ИЖД
Фундамент: Забивные ж/б сваи;
Стены: Керамзитобетонные блоки с утеплением;
Кровля: Металлочерепица "Каскад";
Отделка фасада: Декоративная фактурная штукатурка;
Забор по периметру: Профлист / штакетник.
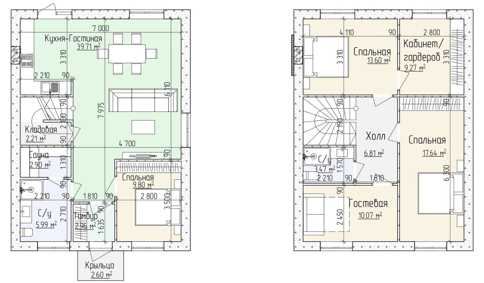
В домах Вы можете реализовать любую планировку. Также у нас есть типовые варианты, спроектированные с учётом комфорта эксплуатации.

МАТЕРИАЛЫ СТРОИТЕЛЬСТВА

ПЛАНИРОВКА ПО ВАШИМ ЖЕЛАНИЯМ

Коммуникации заведены в дом
Охрана 24 / 7
Забор по периметру участка
ПОДРОБНЕЕ

О ДОМЕ

Капитальный индивидуальный дом для всей семьи в закрытом посёлке. Все дома утеплены и подходят для ежегодного проживания. Все коммуникации заведены, включая оптоволоконный интернет. После сдачи объекта земля и дом переходят в собственность клиента.